|
QB型5-20/5噸防爆橋式起重機

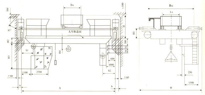
QB型防爆橋式起重機是采用國際先進標準制造的系列產品。整機結構新穎、造型美觀、工藝性好、操作靈活平穩、安全可靠。
主要特點:
(1)橋架采用箱形主梁,自動埋弧焊焊接。
(2)小車導電采用工字鋼軌道電纜導電新裝置,安全可靠。
(3)起升機構根據要求還可設第二套安全裝置。增加可靠性。
(4)零部件標準化、系列化、通用化。
(5)操縱室視野開闊,全部機構均在操縱室內操縱,工作舒適操縱靈活。
本產品廣泛適用于普通重物的裝卸與搬運,還可配以多種專用吊具進行特殊作業,當露天使用時帶有防雨設備。表中數據為室內起重機用,室外起重機總重和輪壓約增加5%,起重機按使用繁忙程度分為中級(A5)和重級(A6)兩種工作制度。選用時應注明工作制度,工作環境的最高、最低氣溫及電源種類等技術要求,還可根據用戶要求的跨度設計制造。
|
起重量 |
t |
5 |
10 |
|
跨度 |
m |
10.5 |
13.5 |
16.5 |
19.5 |
22.5 |
25.5 |
28.5 |
31.5 |
10.5 |
13.5 |
16.5 |
19.5 |
22.5 |
25.5 |
26.5 |
31.5 |
|
起升高度 |
16 |
16 |
| 速度 |
起升 |
m/min |
2.04 |
2.2 |
| 小車 |
20.7 |
20.7 |
| 大車 |
31 |
27.5 |
31 |
27.5 |
| 電動機 |
起升 |
型號/kW |
YB112M-6/2.2 |
YB160M-6/7.5 |
| 小車 |
YB112S-6/2.2 |
YB112M-6/2.2 |
| 大車 |
YB132S-6/2×3 |
YB132M-8/2×3 |
YB132S-6/2×3 |
YB132M-8/2×3 |
| 重量 |
總重 |
t |
11 |
12.7 |
14.7 |
17 |
19.6 |
24.2 |
27.4 |
30.5 |
14.2 |
16 |
17.9 |
20.7 |
23.3 |
28.7 |
32.2 |
35.3 |
| 小車 |
1.7 |
3.3 |
|
最大輪壓 |
KN |
63 |
71 |
77.5 |
84 |
90.5 |
104 |
112.5 |
121.5 |
110.5 |
117 |
125.5 |
132 |
139.5 |
155.3 |
164 |
171.3 |
|
薦用大車軌道 |
|
38Kg/m |
43Kg/m |
|
電源 |
mm |
三相交流 380V 50Hz |
三相交流 380V 50Hz |
|
LX |
1400 |
2000 |
|
BQ |
3400 |
3550 |
5000 |
4050 |
5000 |
|
Bx |
1100 |
1400 |
|
B |
4340 |
4450 |
5900 |
4990 |
5090 |
5900 |
|
b |
230 |
230 |
|
H |
1753.5 |
1876 |
1926 |
|
H1 |
725 |
725 |
775 |
|
H2 |
-24 |
126 |
226 |
376 |
526 |
676 |
826 |
976 |
-24 |
126 |
226 |
376 |
526 |
628 |
778 |
928 |
|
H3 |
2502 |
2420 |
2370 |
2380 |
2210 |
2502 |
2420 |
2370 |
2380 |
2210 |
|
H4 |
44.5 |
544 |
494 |
|
S1 |
800 |
1000 |
|
S2 |
1250 |
1350 |
|