|
LH-5、10噸電動葫蘆雙梁起重機

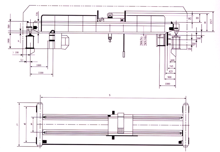
本機結構主要由主梁、橫梁、大車運行機構、小車及小車運行機構和固定在小車架上的CD1-AZ型或MD1-AZ型固定式電動葫蘆所組成,是一種有軌運行的輕重型起重機,工作制度適用A3-AS,工作環境溫度為一25℃-40℃范圍內,起重量有5t,10t,適用于跨度
7.5-22.5米,電氣設備操縱形式有無線、有線地面操縱和操縱室操縱。
本產品為一般用途起重機,多用于一般機械制造、裝配車間和倉庫等場所,用來搬運和裝卸物料。
本產品不易在易燃、易爆的介質中或具有很大濕度腐蝕性氣體的場所工作。也不適用于吊運熔化的金屬、有毒物和易燃物的工作。
|
起重量
|
跨度
|
提升高度
|
電源
|
大車運行機構 |
小車 |
車軌直徑
|
軌道面寬
|
最大輪壓
|
總重量
|
主要尺寸 |
備注
|
|
地面 |
操縱室 |
葫蘆型號 |
起升速度 |
運行速度 |
K |
W |
L
|
L1 |
H
|
H1 |
H2 |
h |
|
速度 |
電動機 |
功率 |
速度 |
電動機 |
功率 |
|
|
|
|
t |
m |
|
m/min |
型號Type |
kW |
m/min |
型號Type |
kW |
|
m/min |
mm |
KN |
t |
mm |
|
|
5
|
7.5 |
6;
9;
12; |
三相
交流
380V
50Hz |
28.72 |
YSE802-4D |
2×0.8 |
42.9 |
YSE90L-4D |
2×1.5 |
CD1(MD1)5-(6,9,12)-A2 |
8;8/0.8 |
17 |
Ф300 |
37-70 |
34.43 |
4.9 |
1500 |
3000 |
3550 |
120 |
1163 |
781 |
578 |
-3 |
|
|
10.5 |
38.04 |
5.86 |
17 |
|
13.5 |
40.9 |
6.78 |
107 |
|
16.5 |
44.13 |
7.98 |
187 |
|
19.5 |
47.17 |
9.2 |
267 |
| 22.5 |
50.28 |
10.7 |
347 |
|
10 |
7.5 |
YSE90L-4D |
2×1.5 |
CD1(MD1)10-(6,9,12)-A2 |
7;7/0.7 |
57.28 |
5.6 |
121 |
1374 |
863 |
620 |
47 |
|
10.5 |
62.68 |
6.68 |
187 |
|
13.5 |
67.38 |
8.04 |
277 |
|
16.5 |
72.03 |
9.65 |
427 |
|
19.5 |
76.66 |
11.37 |
527 |
|
22.5 |
80.99 |
13.05 |
607 |
|